Herzlich willkommen beiWohnen in Hallein
Mit unserem neuen Projekt mit 6 Wohneinheiten in der Partingtonstraße 8, 5400 Hallein bieten wir Ihnen 2 / 3 / 4 Zimmerwohnungen mit höchstem Standard zur Miete an. Beste Verkehrsanbindung, Schulen, Kindergarten und Nahversorger sind in wenigen Gehminuten erreichbar. Wir freuen uns darauf, auch Ihnen das perfekte Eigenheim zu ermöglichen.
Unsere Angebote für Sie
Objektbeschreibung:
Am ruhigen südlichen Stadtrand von Hallein befindet sich in der Partingtonstrasse 8 ein Mehrparteienhaus (6 Wohnungen, Büros und kleine Montagehalle) in 3. Reihe neben der Hauptverkehrsstraße (Salzachtalstraße).
Perfekte Infrastruktur-Anbindung, wie Bushaltestelle (300m) 1/2 stündlich direkt nach Salzburg, Nahversorger in unmittelbarer Nähe (350m) , Kindergarten und Grundschulen in 10 minütiger Gehweite, Stadtzentrum und S-Bahn in 15 Minuten zu Fuß, sind zu erreichen.
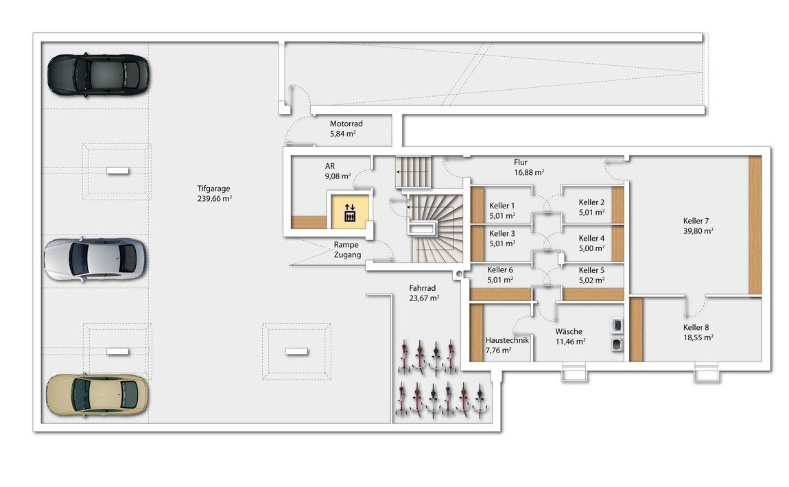
Im Objekt sind im Untergeschoß eine Tiefgarage und diverse Kellerabteile situiert. Mit einem Personenaufzug oder zentralem Stiegenaufgang erreichen Sie im Erdgeschoß 2 Terrassenwohnungen ( 2- und 3-Zimmer Wohnungen) und Büros, im ersten Obergeschoß 3 Wohnungen (2-, 3- und 4-Zimmer Wohnungen) mit großzügigen Terrassen und Balkonen und im 2. Obergeschoß eine Penthouse-Wohnung (3-Zimmer Wohnung) mit großer Sonnenterrasse.
Alle Zugänge und Übergänge im Stiegenhaus und in den Wohnungen sind barrierefrei ausgestattet.
Mit einem sehr geringen HWB 25, Niedertemperatur-Gas-Brennwertgerät und Photovoltaikanlage sind geringste Heizkosten garantiert.
Zur weiteren Ausstattung zählen Fußbodenheizung, edle Parkettböden, hochwertige Badezimmerausstattung und kontrollierte Wohnraumbelüftung als Standard.

2 Zimmer Wohnungen
Mit unseren bestens geschnittenen 2 Zimmer Wohnungen bieten wir für Singles und Paare die ideale Basis für einen gelungen Wohntraum zu günstigen Preisen. Natürlich sind die Wohnungen mit Terasse oder Loggia ausgestattet.
Mehr dazu

3 Zimmer Wohnungen
Unsere 3 Zimmer Wohnungen bieten bei perfekter Ausrichtung von S - SW Platz für kleine Familien. Die Terasse mit Garten oder Balkon bieten viel Platz zum Entspannen u.v.m.
Mehr dazu

4 Zimmer Wohnugen
Unsere 4 Zimmer Wohnung ist die ideale Immobilie für Familien mit 2 Kindern. Durch die Herstellung von 2 Balkonen im Süden und Westen, kann man den ganzen Tag über die Sonne genießen.
Mehr dazu


